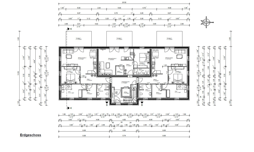
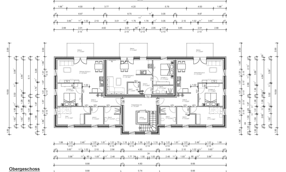
Ein exklusiver Neubau, welcher keine Wünsche offen lässt! Im Herzen des beliebten Emder Stadtteils Wolthusen entsteht durch unseren renommierten Geschäftskunden Horn Bauunternehmen aus Ostrhauderfehn ein schlüsselfertiges Neubauprojekt mit 9 hochwertigen Neubauwohnungen. Der Immobilienfachwirt Dennis Büürma wurde exklusiv für die Vermarktung aller Eigentumswohnungen beauftragt. Das Raumkonzept ist barrierefrei und bietet durch zahlreiche Extras (elektrische Jalousien, Fahrstuhlanlage etc.) höchste Wohnqualität für Jung und Alt. Ein durchdachtes Bauprojekt, welches besonders energieeffizient (Energieeffizienzklasse A+) ist und bereits viele Kaufinteressenten zählt. Die Fertigstellung des Gebäudes erfolgt im Jahr 2024. Das BS Immobilien Kontor Team in Emden steht für Anfragen zu dieser Neubauimmobilie gerne zur Verfügung.
11/2023, verfasst durch Vera Hinrichs







